Gelungene Balance aus Tradition und Moderne.
Als individuell geplantes Satteldachhaus überzeugt Haus Fuchs schon auf den ersten Blick durch seine elegante Symmetrie, schlanken Lichtbänder auf der Eingangsseite und asymmetrische Dachgeometrie auf den Giebelseiten. Der Kontrast zwischen Weiß und Anthrazit betont das klare und edle Erscheinungsbild zusätzlich. Am Ostgiebel befindet sich ein großer Balkon mit Teilüberdachung und darunter eine geschützte Terrasse.
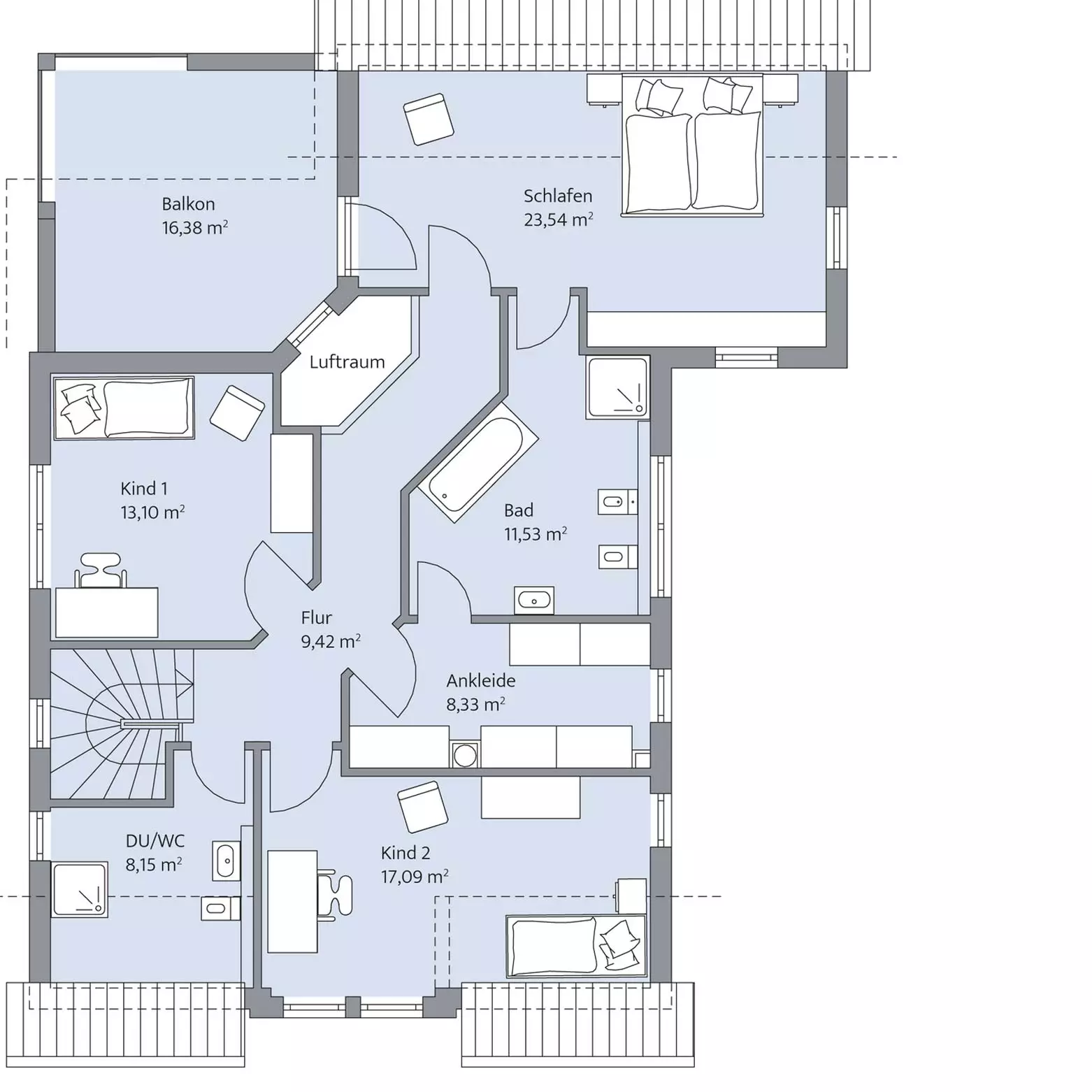
Offenheit und viel Licht prägen auch den Grundriss im Erdgeschoss: Eingangsbereich, Diele, Garderobe und Treppe sind ins offene Wohnensemble integriert. Das Dachgeschoss ist für vier Personen ausgelegt und bietet ausreichend große Individualräume und viel Komfort. So verfügt der Elterntrakt über ein Bad mit Dusche und Wanne sowie eine Ankleide, die auch von den Kinderzimmern aus genutzt werden könnte.















